SOFTMOLD

Wir gestalten Ihre Zukunft

Design und Modellierung Moulds Lda.

Artikel 3D

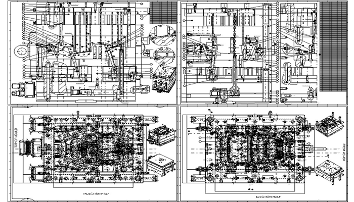
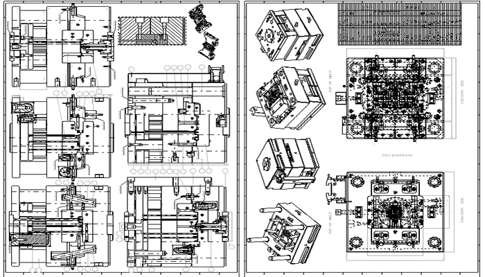
3D für formen

2D für formen