SOFTMOLD

The futur of molds

Design and Modelling Moulds Ltd.

Draft Parts

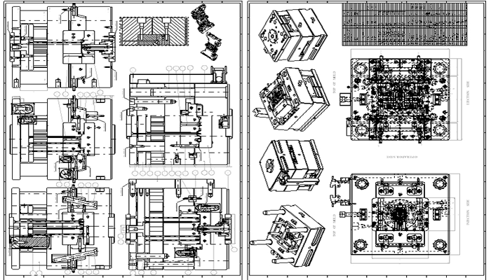
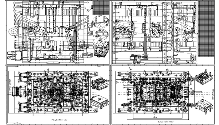
3D Molds

2D Molds